Neue bahnbrechende Matterport KI Features!
Immobilienreport
Alle in Property Layout durchgeführten Arbeiten werden sofort im Property Report aktualisiert, einer druckfertigen Ansicht nützlicher neuer Immobilieninformationen, einschließlich des Grundrisses und einer vollständigen Analyse nach Räumen, Stockwerken und der gesamten Immobilie. Für Matterport-Kunden mit Professional-Plänen und höher, kann der Property Report geteilt und exportiert werden, während Kunden, die Zugang zur Matterport-API erworben haben, noch mehr Zeit sparen können, indem sie die Daten von Property Intelligence in ihre alltäglichen Arbeitsabläufe und Systeme integrieren, um das Beste aus ihren Immobiliendaten herauszuholen. Dies eröffnet eine komplett neue Sichtweise bezüglich dem Matterport Portal und einen enormen Mehrwert der im Professional Plan einfach mitgeliefert wird.
Automatisierte Raummaße
Raum-Messungen sind eine der häufigsten und zeitaufwändigsten Anfragen von potenziellen Hauskäufern, um zu verstehen, ob eine Immobilie ihren Bedürfnissen entspricht. Wenn Sie jetzt einen digitalen Zwilling von Matterport erstellen, wird jede Wand in jedem Modell automatisch vermessen, einschließlich der Deckenhöhe, um Ihnen zu helfen, die Größe eines Raums wirklich zu verstehen. Räume werden automatisch beschriftet, wobei Property Intelligence (KI) bereits mehr als 20 verschiedene Raumtypen identifizieren kann, wie z.B. Küchen, Büros, Schlafzimmer, Schränke und viele mehr. Sofern das von der KI ermittelte Resultat nicht den Wünschen entspricht, kann dies angepasst werden. Sogar Wände, Türen , oder Öffnungen können korrekt platziert werden. Diese Funktion lässt unserer Meinung nach sogar Spielraum um neue Layouts grob zu planen.
Plugins
Kompass
Minimap
Visitenkarte
Call to action
Das Kompass-Plugin zeigt den Betrachtern welche Richtung relativ zu ihrem Blickpunkt Norden ist. Dies ist besonders nützlich für das Verständnis von Tageslicht und ähnlichem. Der Kompass kann in verschiedenen Stilen und Größen dargestellt, und an verschiedenen Positionen gesetzt werden.
Mit dem Minimap Plugin kann der Betrachter jederzeit sehen, wo er sich im Grundriss des Stockwerkes befindet. Die Minimap kann durch verschiedene Größen und Formen angepasst und in jeder Ecke des Bildschirms positioniert werden und damit auch die visuelle Gestaltung erleichtern.
Verbessern Sie die Besuchererfahrung, indem Sie eine sehr attraktive, erweiterbare Visitenkarte einbauen, auf der die wichtigsten Kontaktinformationen stehen. Dies könnte z. B. Angaben zum Makler , Verwalter , Architekt, usw. enthalten. Dies verleiht dem Rungang eine persönliche Note.
Fügen Sie ein Bild/Logo und einen Link in der Ecke eines digitalen Zwillings ein, um schnell und einfach auf externe Inhalte wie eine Agenda , Reservationssystem oder Ticketsystem usw. zugreifen zu können. Dies ermöglicht dem Besucher umgehend auf Ihr Angebot zu reagieren und erhöht Ihre Chancen.
Mehr Optionen für Grundrisse
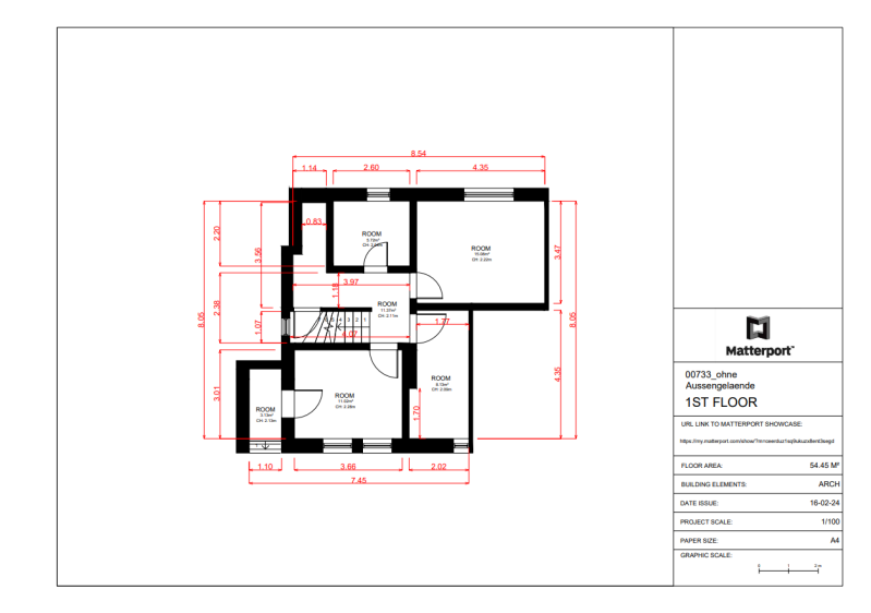
Die beliebten und sehr erschwinglichen 2D-Grundrisse, die bisher nur in Schwarz-Weiß erhältlich waren, sind jetzt mit mehr Anpassungsoptionen verfügbar. Kunden können jetzt auf farbige Grundrisse mit oder ohne Möbel, mit Logo od. QR Code Einbettung und Sprachoptionen für Deutsch , Englisch, Französisch, Spanisch, und Italienisch zugreifen. Die zahlreichen Optionen können Sie hier im Detail nachlesen. Die Grundrisse sind sehr geeignet zum selbst anpassen und diese auf die eigenen Bedürfnisse anzupassen, da die Kosten sehr gering sind. Zur Zeit sind die Farb- und Sprachoptionen nur bis 930m2 verfügbar. Da die automatisierte Funktion der Flächenberechnung noch nicht zwischen der Aussen und Innenfläche unterscheiden kann, wird die Aussenfläche für die Berechnung der 930m2 Limite miteinbezogen und deshalb ist oft die Zusatzoption nicht verfügbar. Man kann aber mit einem Workaround die Bestellung trotzdem ausführen. Sie können den Space auf dem Tablet duplizieren und die Scanpunkte draussen löschen und den Space noch einmal hochladen. So haben Sie die Fläche auf unter 930m2 reduziert und erhalten den Floorplan wie gewünscht. Auch die Express Funktion finden wir super! Hier das Beispiel zum Download

Exakte Grundrisse im Masstab DWG/PDF

Oft wurden wir gefragt, ob man auch massstabgetreue Grundrisse von Matterport liefern könnten. Im Dezember 2023 wurde die Beta-Version des Matterport CAD-Datei-Zusatzes eingeführt, der die digitalen Zwillingspunktewolken von Matterport in DWG/PDF für jeden beliebigen Raum umwandelt. Das Matterport CAD-Datei-Zusatzmodul ist ab sofort für Professional Plan-Kunden verfügbar und bietet eine Alternative zur mühsamen manuellen Dokumentation des exaktzen Ist-Zustands, zu wiederholten Ortsbesichtigungen, um fehlende Informationen zu sammeln. Kunden können aus vier verschiedenen Ausgabeoptionen wählen, um ihre Anforderungen zu erfüllen. Wir haben umgehend für Sie die CAD Files für ein Haus mit 320m2 bestellt und diese Pläne haben uns 350 EUROS gekostet. Es werden verschiedene Dateiformate mitgeliefert was auch die Zusammenarbeit mit einem Architekten/Planer/Zeichner erleichtert. Laden Sie hier das Beispiel herunter . Der Preis ist akzeptabel, denn eine Bestandsaufnahme wäre sehr viel teuerer, deshalb können wir dieses Produkt ebenfalls empfehlen. Immer interessanter wird dies für Verwaltungen , Office Planung, Architekten usw. , auch in Kombination der Matterport Produkte wie Rundgang, Immobilienreport, Grundrisse usw. Die Grundrisse können in verschiedenen Varianten bestellt werden wie : Architektur, mit Innenausbau , mit MEP oder Alles.
Was kommt als nächstes aus der Matterportküche?
Wir waren echt erstaunt zu lesen was als nächstes kommt. Es soll möglich sein, dass man automatisch Möbel entfernen kann aus dem Rundgang ? Das würde eine neue Dimension eröffnen und wäre extrem nützlich für Vermietung und Verkauf, denn wir alle wissen, dass die meisten Objekte bewohnt sind und es aus vielerlei Gründen deshalb nützlich wäre, wenn man die persönlichen Gegenständer der aktuellen Mieter / Besitzer entfernen könnte. Das wollten wir Euch nicht vorenthalten. Es macht also jeden Tag noch mehr Sinn und Spass in die Technologie, Software und Schulung von Matterport zu investieren. Das Produkt wird immer mehr entwickelt und den B2B und B2C Kundenbedürfnissen angepasst.